干弱电的都会遇到做机房工程,机房里大部分都会铺设防静电地板,专业的人干专业的事,但是作为弱电人,也要明白其中的施工规范和要求,跨行业的知识,其实对于本专业的人在某种程度上来讲会起到事半功倍的效果,你懂得!
机房地板一般采用防静电活动地板。防静电地板的作用,就是把地面上所产生的静电,通过防静电地板导入大地。这一点,下面我们立刻即可一目了然。
1、可拆卸性。因此,机房内设备可在防静电地板下进行自由的电器连接,便于铺设和维修,使机房整洁美观;
2、可以保护各种电缆、电线、数据线及插座,使其不受损坏;
3、可以利用地板下的空间作为空调的静压风库,获得满意的气流组织;
4、消除电缆外露对人体的危害;
5、可以利用防静电活动地板的可调性,消除地面的不平度,保证机房地面的整体水平度;
6、能使静电荷漏泄至地,并反射电磁辐射。
7、机房地板,应符合国标GB6650-86《计算机房用活动地板技术条件》。

1、地面处理:
机房抗静电地板安装工程中,地面预处理十分关键,在铺设地板前必须先对地面进行较好的预处理,首先刷素泥一道,抹平机房地面,采用20厚1:2.5水泥砂砂抹面赶光,地面基础处理到平整、光滑、没有明显的坡度和不平,再刷机房专用地台漆二遍,起防潮、防霉作用。

2、拉水平线
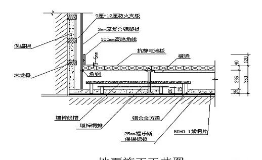
地面弹方格网线,弹线要反复校正。在机房四周墙面安装角钢支架,地面按地面弹线铺设金属屏蔽网(50*0.1紫铜片),金属屏蔽网与机房接地铜排相连,组成一个完整的机房屏蔽系统,具有接地、抗静电、抗干扰的作用。
根据房间平尺寸和设备布置情况,按活动地板块模数,制定铺设方案及合理的铺设方法,应遵循以下原则:
①如室内无控制柜等设备,几何尺寸有符合活动地板块模数时,宜由内向外铺设。
②如室内平面尺寸不符合板块模数时,应把室内两个方向的中心点找出来,看两边尺寸相差多少,若相差不明显,宜由外向内铺设;若相差较大时,宜进行对称分格,由内向外铺设。
③如室内地面上没有控制柜等设备(要留洞时),其铺设方向和先后顺序应综合考虑。
④根据设计要求确定铺设高度。
综合上述,铺设方法确定后,要进行找中、套方、分格、定位放线工作,即需要把分格线标弹在地面上,又要把标高线标弹在四周墙壁上,以便于施工时操作控制。

3、接地铜排
首先要在地板的下方先铺设一层铜箔,用于和地板的充分接触,其次就是把铜泊铺设到墙边时,汇集几个点接到接地线上(三到五个点最佳,防止在使用中有的点断开),接地线的另一端要连接一个接地柱,接地柱最好能埋在地面50cm以下的深度,这样才能使地板起到静电释放的作用!

结合布线系统的设计及施工,在地面架空安装强弱电走线线槽及接地铜排,强弱电走线线槽之间间距大于30mm。
4、保温棉
在地面铺设和地板下四周墙面铺设25mm厚阿姆斯壮一级福乐期保温棉,包福乐斯不燃铝箔,起到保温、隔热、防潮作用,至此,地面预处理完成。

5、铺设防静电地板
地板支撑脚直接安装在50*0.1紫铜片上方。敷设地板时,用水泡水平仪逐步找平,高度靠可调支架调节,相临地板间不得有缝隙,安装较重设备的地板下部加强支撑。地板板面标高300~350mm,具有足够空间形成地板下净压风库。
铺设活动地板块并调整水平高度,保证四角接触平整、严密,活动地板块不符合模数时,不足部分可根据实际尺寸切割后镶补(切割地板时要精细),并配装相应的可调支架和横梁。
地面防静电地板施工工艺图如下:

机房踢脚台阶施工工艺图如下:

进入机房架高地面的踢脚台应具有防水隔潮、美观大气、坚固实用等特点,本项目中,可以使用120mm砖墙砌筑以隔离机房架高地面,设一级台阶,台阶的宽度以300mm为宜,以砌素砼而成,根据实际需要,在台阶表面铺设防水材料,如大理石、丁纹钢板、塑胶地板等。
对于静电地板的详细安装,一直是很多朋友的难点,问的各种问题比较多,为了方便大家了解,我们这里有一些图,方便大家更直观的理解。










【免责申明】
文章来源于“网络”版权归原作者所有。如涉及作品版权问题,请与我们联系,我们将删除内容!

公司简介
长沙火焰智能科技有限公司是一家专业从事防雷产品及静电地板的研发、生产、销售的高新技术企业。
同时提供防雷工程设计、施工、防雷检测、技术培训和技术咨询等一条龙服务。

相关案例
防雷施工
株洲康复医院手术室设备防雷接地工程
玉溪聂耳音乐广场防雷工程
邵阳宝庆精神病医院新办公楼综合防雷工程
楚雄中国移动IDC机房工程
云南马关第二人民医院机房工程
解放军某部坪石通讯站防雷接地
耒阳通讯站防雷接地
岳阳军分区防雷接地
湘潭中路铺通讯站防雷接地
天心区国税局网络机房防雷接地
长沙市民之家机房防雷工程
安江农校纪念园安全技术防范系统工程
娄底潇湘学院防雷整改工程
岳阳转播电视台机房防雷接地工程
武警湘某部防雷项目工程
防雷检测
常德市第一人民医院防雷检测项目
湖南省幼保健院防雷检测项目
清水塘小学防雷检测项目
衡阳市人民防空大楼防雷检测项目
茶陵县税务局防雷检测项目
衡阳市公安局南岳分局防雷检测项目
浏阳市水利建设投资有限公司防雷检测项目
国家税务局总局助手市石峰税务局云龙分局防雷检测项目
静电地板安装
南县人民医院静电地板安装
常德市武陵区税务局静电地板安装
昭通卫校机房地板工程
云南昆明功东高速机房地板工程
玉溪消防总队机房地板工程
云南南方电网机房改造地板工程
昆明第五实验中学地板机房工程
联系我们
电话:15802532033
网站:http://www.csflame.com
地址:湖南省长沙市芙蓉区三湘大市场智慧城三楼17-1号
扫码关注我们!
火 焰 防 雷
承 诺 安 全

